数字孪生技术如今在工业环境中很受欢迎,因此了解数字孪生概念是如何定义以及如何部署至关重要。
物联网设备是一种通过互联网将数据从一个地方传输到另一个地方的硬件(通常是传感器)。物联网设备的类型包括传感器、执行器以及更复杂的计算机设备。
数字孪生(Digital Twins)是物理对象的软件表示。数字孪生必须包含它所代表的物理对象的唯一标识符。然而,只有在添加了附加信息(例如位置、温度、湿度等感官信息)和驱动能力(开/关灯)之后才能实现其目的。数字孪生通常会包含额外的辅助数据,例如设备的固件版本、配置、校准和设定点数据等。
当谈到驱动时,人们经常将数字孪生称为其物理表示的“影子”,以强调驱动始终是事务性的这一事实。例如,数字孪生改变其设备状态(关闭或打开)的意图需要向设备发送特定命令,在成功完成驱动之后需要将其传递回调用者。
数字孪生有时也被称为物联网设备的虚拟表示,它们并不完全相同。需要仔细了解这两个类别,因为它们之间的差异实际上比人们想象的要大。
物联网设备和数字孪生代表的是同一件事吗?当事情大致相同时可能是。
公用事业公司的业务通常包括能源(电力、天然气)和水的调配和管理。而在公用事业网络中部署连接设备,并收集有助于更有效和可靠地提供服务的数据,可以创建新的服务和商业模式。以物联网自动化和分析软件年代商Waylay公司为例,该公司提供的解决方案发挥了重要的集成作用。在这个例子中,一家公用事业公司决定为客户提供一个平台,用户可以通过这个平台检查他们的能源和水的消费情况,并设置警报和阈值进行提醒。

在这一示例中,公用事业公司将智能仪表与LPWAN物联网传感器连接以测量用水量。其自动化规则的创建基于物联网设备数据查看物理对象的客户门户,并且相当简单,因为物联网设备、物理对象及其数字孪生存在一对一的对应关系。
让我们再看一个更加复杂的例子,假设想在一台设备上部署几个物理物联网传感器。每个物联网设备都可以提供气压、温度、能耗等信息。在这种情况下,无法定义代表设备的单个物联网设备。必须考虑所有连接的物联网传感器/设备的组合输入,以获得其相关对象的完整视图。当将物联网设备放置在更复杂设备的不同部分时,人们不仅对这些物联网设备中的每一个单独测量的内容感兴趣,而且对它们揭示的整个底层对象的信息感兴趣。在这种情况下,数字孪生成为其所在环境中物理对象的虚拟表示。它反映了来自物联网传感器的数据以及对设备性能有影响的环境条件。
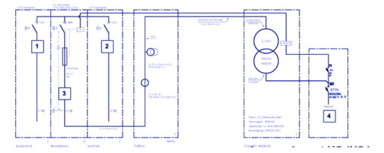
在下面的例子中,法国能源商ENGIE公司使用Waylay公司的自动化技术为其智能电气柜设计了一个解决方案。ENGIE Smart Cabin解决方案基于安装在电压单元上的一组传感器来监控高压电气柜的电源和关键参数。这一解决方案还可以监控机柜内部的温度、湿度和门禁。传感器数据首先通过IoT Sigfox网络传输,然后由Waylay平台收集和处理数据,以检测异常或电源中断、生成警报并升级警报以进行快速干预。此外,客户还可以通过Smart Cabin仪表板获得实时状态视图。
在这个用例中,多个物联网设备(传感器)被部署在一个电气柜中,可以将其转变为一个智能电气柜。这些设备通过Sigfox网络将传感器读数传输到Waylay平台。高压电气柜的电压方案及其物联网设备的部署位置如下图所示:

ENGIE公司的Smart Cabin解决方案
在这个项目中,Waylay平台解决了以下挑战:

ENGIE公司的Smart Cabin自动化规则
当人们谈论物联网应用程序的可扩展性时,通常会从存储容量、查询时间、流摄取率等方面考虑。一个经常被忽视但确实非常重要的问题是配置过程的可扩展性。Waylay平台的供应API部分提供了解决方案,但还可以提供更多帮助。Waylay平台的数字孪生概念基于JSON模式,可以针对任何特定的垂直领域进行扩展。Waylay的数字孪生概念类似于面向对象编程(OOP)世界中的类/对象关系。它使数字孪生能够利用继承和关系建模。
Waylay平台的另一个独特功能是能够将自动化规则与一类数字孪生相关联,而不是与数字孪生的单个实例相关联。这使得Waylay平台的配置过程和新用例的实施极其快速、高效和可扩展——通常也称为零接触配置。
最重要的是,自动化规则可以在运行时访问所有数字孪生配置,这允许平台用户(设置供应流程的人员)还可以定义客户特定的设置,例如自定义阈值设置、SMS通知号码、电子邮件地址等。
在向工业4.0过渡的过程中使用数字孪生概念带来了具体的挑战。在选择合适的数字孪生技术和相应的自动化平台时,需要考虑以下七项要求:
(1)数字孪生表示不仅与物联网设备有关,还必须涵盖更广泛的抽象能力。
(2)必须允许数字孪生解决方案对物联网设备之间的关系进行建模。客户应该能够创建特定于其垂直或用例的新数字孪生模型。
(3)自动化平台必须提供一个配置基础设施,可以支持创建数字孪生,并将其与不同的物联网设备相关联(包括建模关系)。
(4)在这些“复合”对象上创建自动化场景(规则)应该是无缝的——也就是说,自动化模板应该可以分配给这些对象,而不仅仅是分配给物联网设备。物联网设备之间的任何特定关系都应在配置过程中自动解决。例如,故障或维护任务应适用于空气调节系统(HVAC)实体,而不适用于空气调节系统(HVAC)的特定传感器/传感测量。
(5)一般来说,物联网设备应该能够在不同的时间发送数据,因此流数据的无缝合并必须是可能的。
(6)自动化规则必须能够访问配置数据(例如运行时的阈值交叉),这些配置会随着时间而改变。在运行时,所有自动化规则都必须了解这些更改。
(7)物联网平台应允许最终用户在数字孪生资产系列上创建自动化规则,这应在配置时完成。这强制要求不同的HVAC系列需要不同的规则,这些规则应该只配置一次,而不是在单个资产上配置。
在这篇文章中介绍了数字孪生概念,其中数字孪生与其物理表示相差不远,而数字孪生则作为现实世界物联网设备的反映而存在。
最近,很多人开始讨论数字孪生应用在虚拟世界中的场景。在这个世界中,数字孪生用于模拟现实并允许对不同的“假设”场景进行建模,这些场景稍后可以由数字孪生的物理代表应用于现实世界。而模拟的想法并不新颖,长期以来,工程师一直在飞行模拟中使用这些技术,在设计涡轮机时对动态流动进行建模,或者在对人群流动进行建模为城市规划者提供这些技术。数字孪生增加的新颖性是实施场景的可塑性,其具有广泛的应用,并利用物联网技术的最新进展。数字孪生如今才开始走上激动人心的旅程,人们可以期待在未来可以看到更多的模拟应用。
原文标题:Challenges of Creating Digital Twins in the Transition to Industry 4.0,作者:Veselin Pizurica